Схема предохранителей Volkswagen Golf Jetta Mk1

Volkswagen Golf 1 первого поколения производился с 1975 по 1984 год, включая модели 1975, 1976, 1977, 1978, 1979, 1980, 1981, 1982, 1983 и 1984 годов выпуска. В этой статье мы подробно разберем предохранители и реле для Volkswagen Golf 1 и Volkswagen Jetta 1 (Mk1), включая схемы блоков предохранителей, их расположение в автомобиле, фото блоков и примеры. Особое внимание уделим предохранителю, отвечающему за прикуриватель, а также другим элементам электрики VW Golf 1.

VW Golf 1

Функции предохранителей и реле могут варьироваться в зависимости от года производства, комплектации электрического оборудования и рынка сбыта вашего Volkswagen Golf 1 или Jetta 1.

Расположение блока предохранителей и реле

Основной блок предохранителей и реле в Volkswagen Golf 1 установлен в салоне под приборной панелью на стороне водителя, что обеспечивает удобный доступ для диагностики электрической системы.

Блок предохранителей гольф 1

Схема блока предохранителей Volkswagen Golf 1

Схема блока предохранителей

Расшифровка предохранителей

18A Левая фара ближний свет
28А Правая фара ближний свет
38A Левая фара дальний свет
48A Правая фара дальний свет
516А Обогрев заднего стекла
68А Стоп-сигнал, аварийные огни
78А Прикуриватель, внутреннее освещение, часы
88А Указатели поворотов
98А звуковой сигнал и свет заднего хода
1016А Вентилятор радиатора
118А Стеклоочиститель, стеклоомыватель и омыватель заднего стекла
128А Подсветка номерного знака
138А Задний фонарь правый, передний габаритный фонарь правый
148А Задний фонарь левый, передний габаритный фонарь левый
158А Противотуманная фара 25А Вентилятор радиатора
1650А Пусковые свечи накала

В верхней секции блока предохранителей Volkswagen Golf 1 могут быть размещены дополнительные элементы для радиоаппаратуры, электростеклоподъемников и других опций электрики.

Функции реле в блоке VW Golf 1

  • R1 — Контроль зарядки
  • R2 — Передние стеклоочистители
  • R3 — Аварийная сигнализация
  • R4 — Сигнал не пристёгнутых ремней безопасности
  • R5 — Задний стеклоочиститель
  • R6 — Контрольные лампы / топливный насос
  • R7 — Свечи накала / Контроль содержания кислорода
  • R8 — Звуковой сигнал

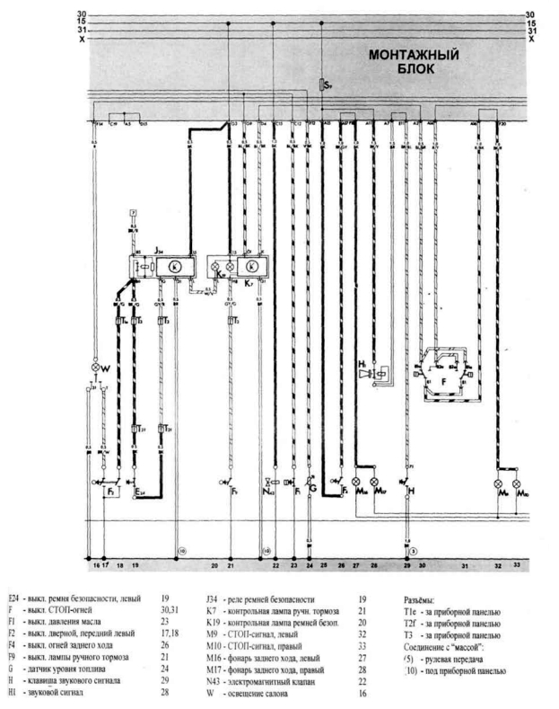
Общая электрическая схема соединений для Golf 1 и Jetta 1

общая схема соединений

 

Если у вас остались вопросы по предохранителям, реле или схемам Volkswagen Golf 1 — пишите в комментариях.

Оставьте комментарий

Ваш адрес email не будет опубликован. Обязательные поля помечены *

Прокрутить вверх