Предохранители и реле Toyota Vista Ardeo SV50

Toyota Vista Ardeo SV50 — это пятое и завершающее поколение семейства Toyota Vista, выпускавшееся с 1998 по 2003 год в кузовах седан (Vista SV50) и универсал (Vista Ardeo). За период производства автомобиль прошел обновление дизайна и технических характеристик. В этой статье мы подробно разберем расположение блоков управления, предохранителей и реле Toyota Vista Ardeo SV50, включая схемы монтажных блоков, реле, их функции и точные места установки для удобного ремонта и диагностики.

Toyota Vista Ardeo sv50

Всегда проверяйте функции предохранителей и реле по схемам на крышке соответствующего блока для вашей модели Toyota Vista Ardeo SV50.

Блоки в салоне

Расположение

Схема расположения монтажных блоков и реле в интерьере

Расположение блоков салоне

Подробное описание позиций

  • 15 — основной монтажный блок предохранителей со стороны водителя
  • 16 — блок реле со стороны водителя для Toyota Vista Ardeo SV50
  • 17 — дополнительный блок предохранителей со стороны пассажира
  • 18 — электронный модуль управления ABS (до апреля 2000 г.)
  • 19 — контроллер Multiplex системы
  • 20 — блок управления SRS (до апреля 2000 г.)
  • 21 — обновленный блок управления SRS (с апреля 2000 г.)

Блок предохранителей

Этот блок размещен под приборной панелью, за бардачком, для легкого доступа при ремонте электрики Toyota Vista Ardeo SV50.

доступ к блоку

Пример внешнего вида блока

Фото пример блока

Вариант 1

Схема предохранителей

для моделей до апреля 2000 года

Схема 1

Расшифровка предохранителей и реле

15A PANEL 2 — Противотуманная фара
25A TAIL — Габариты
35A PANEL 1 — Электронный блок управления трансмиссией, аварийная сигнализация
45A METER — Комбинация приборов
55A ABS-IG — Анти блокировочная система тормозов (ABS)
65A WARN — Индикаторы
75A FAN — Вентилятор
85A MPX-B — Бортовой компьютер
95A ECU-BI — Отопитель, система дистанционного управления центральным замком
105A ROOM — Освещение салона
11BODY — ECU-IG — Бортовой компьютер
125A DOOR — ECU-IG — Электроприводы стекло подъемников
135A DEFOGER — Обогреватель заднего стекла
145A BACK — Фонарь заднего хода
1515A WASHER — Омыватель
1615A STOP — Стоп-сигналы
177,5A TURN — Указатели поворотов
1820A DEICER — Антиобледенитель щеток стеклоочистителя лобового стекла
1930A ROOF — Люк
2010A HEATER — Кондиционер и отопитель
2120A AM1 — Замок зажигания
2210A AIR- BAG-ACC — Система подушек безопасности (SRS)
237,5A ECU-ACC — Система блокировки селектора АКПП и замка зажигания, часы, электропривод боковых зеркал
2420A D FR DOOR — Электропривод стеклоподъемника двери водителя
2530A DOOR №1 — Центральный замок
2615A RR WIPER — Стеклоочиститель заднего стекла
2715A LITER / CIG — Прикуриватель
2820A D RR DOOR — Электропривод стекло подъемника задней правой двери
297,5A OBD — Диагностика
307,5A DEICER RELE — Антиобледенитель щеток стеклоочистителя лобового стекла
3120A P FR DOOR — Электропривод стеклоподъемника передней двери пассажира
3220A P RR DOOR — Электропривод стеклоподъемника задней левой двери
3315A RADIO №1 — Аудиосистема
3425A WIPER — Переключатель управления стеклоочистителя и омывателя
3515A FOG — Противотуманная фара

Предохранитель прикуривателя в Toyota Vista Ardeo SV50 — это номер 27 на 15А, ключевой элемент для аксессуаров.

Вариант 2

Схема предохранителей

для моделей с апреля 2000 года

Схема

Расшифровка

110A PANEL 2 — Противотуманная фара
210A TAIL — Габариты
310A PANEL 1 — Электронный блок управления трансмиссией, аварийная сигнализация
47,5A METER — Комбинация приборов
57,5A ABS-IG — Антиблокировочная система тормозов (ABS)
67,5A WARN — Индикаторы
77,5A FAN — Вентилятор
87,5A MPX-B — Бортовой компьютер
97,5A ECU-BI — Отопитель, система дистанционного управления центральным замком
107,5A ROOM — Освещение салона
117,5А BODY — ECU-IG — Бортовой компьютер
127,5A DOOR — ECU-IG — Электроприводы стеклоподъемников
137,5A DEFOGER — Обогреватель заднего стекла
147,5A BACK — Фонарь заднего хода
1515A WASHER — Омыватель
1615A STOP — Стоп-сигналы
177,5A TURN — Указатели поворотов
1820A DEICER — Антиобледенитель щеток стеклоочистителя лобового стекла
1930A ROOF — Люк
2010A HEATER — Кондиционер и отопитель
2120A AM1 — Замок зажигания
2210A AIR- BAG-ACC — Система подушек безопасности (SRS)
237,5A ECU-ACC — Система блокировки селектора АКПП и замка зажигания, часы, электропривод боковых зеркал
2420A D FR DOOR — Электропривод стеклоподъемника двери водителя
2525A DOOR №1 — Центральный замок
2615A RR WIPER — Стеклоочиститель заднего стекла
2710А MIRROR HEATER — Система подогрева боковых зеркал
2815A LITER / CIG — Прикуриватель
2920A D RR DOOR — Электропривод стеклоподъемника задней правой двери
307,5A OBD — Диагностика
317,5A DEICER RELE — Антиобледенитель щеток стеклоочистителя лобового стекла
3220A P FR DOOR — Электропривод стеклоподъемника передней двери пассажира
3320A P RR DOOR — Электропривод стеклоподъемника задней левой двери
3415A RADIO №1 — Аудиосистема
3525A WIPER — Переключатель управления стеклоочистителя и омывателя
3615A FOG — Противотуманная фара

В обновленной версии предохранитель прикуривателя — номер 28 на 15А, обеспечивающий работу розетки в салоне.

На задней панели блока размещены ключевые реле для различных систем Toyota Vista Ardeo SV50.

Схема блока реле

Расшифровка реле

  1. Реле IG1
  2. Реле электро стеклоподъёмников
  3. Реле противотуманных фар
  4. Реле обогревателя заднего стекла
  5. Реле габаритов

Блоки под капотом

Расположение

Общая схема расположения блоков в моторном отсеке

Расположение блоков под капотом

Описание компонентов

  1. датчик абсолютного давления во впускном коллекторе (3S-FE, 3S-FSE)
  2. электронный блок управления ABS (с 04.2000 г.)
  3. блок реле (3S-FSE)
  4. монтажный блок предохранителей и реле в моторном отсеке
  5. блок реле в моторном отсеке
  6. левый передний датчик SRS
  7. электронный блок управления двигателем
  8. правый передний датчик SRS

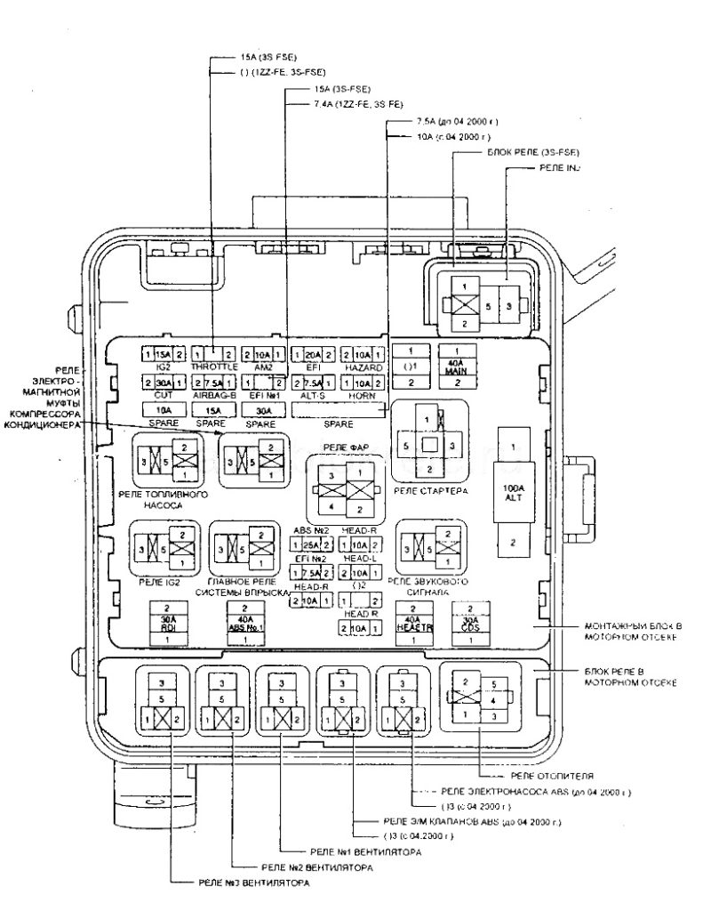
Блок предохранителей и реле

Пример конструкции блока под капотом для Toyota Vista Ardeo SV50

Фото пример блока под капотом

Вариант 1

Схема

модели до 04.2000

Схема 3

Обозначение

110A HAZARD — Аварийная сигнализация
220A EFI — Электронный блок управления двигателем
310A AM2 — Замок зажигания
415A THROTTLE — Система электронного управления дроссельной заслонкой
515A IG2 — Электронный блок управления двигателем
610A HORN — Звуковой сигнал
77,5A ALT SENSING — Генератор
87,5/15A EFI №1 — Электронный блок управления двигателем
97,5A AIR BAG-B — Система подушек безопасности (SRS)
10CUT
1110A HEAD RH — Правая фара ближнего света
1225A ABS №2 — Анти блокировочная система тормозов (ABS)
1310A HEAD LH — Левая фара ближнего света
147,5A EFI №2 — Электронный блок управления двигателем
1510A HEAD RH — Правая фара дальнего света
1610A HEAD LH — Левая фара дальнего света

Вариант 1

Схема

модели c 04.2000

Схема блока 2

Назначение

110A HAZARD — Аварийная сигнализация
220A EFI — Электронный блок управления двигателем
310A AM2 — Замок зажигания
415A IG2 — Электронный блок управления двигателем
510A HORN — Звуковой сигнал
67,5A ALT SENSING — Генератор
77,5/15A EFI №1 — Электронный блок управления двигателем
87,5A AIR BAG-B — Система подушек безопасности (SRS)
9CUT
1010A HEAD RH — Правая фара ближнего света
1125A ABS №2 — Антиблокировочная система тормозов (ABS)
1210A HEAD LH — Левая фара ближнего света
137,5A EFI №2 — Электронный блок управления двигателем
1410A HEAD RH — Правая фара дальнего света
1510A HEAD LH — Левая фара дальнего света

Реле в моторном отсеке

Реле под капотом

 

Если есть дополнения по предохранителям или реле Toyota Vista Ardeo SV50, поделитесь в комментариях.

Оставьте комментарий

Ваш адрес email не будет опубликован. Обязательные поля помечены *

Прокрутить вверх