Toyota Avalon второго поколения производилась в период с 2000 по 2004 год под индексом кузова XX20. За эти годы автомобиль подвергся нескольким обновлениям. В этой публикации мы подробно разберем расположение блоков предохранителей и реле Toyota Avalon XX20, их схемы, фото-иллюстрации и назначения. Особое внимание уделим предохранителю прикуривателя и другим ключевым элементам электрической системы Toyota Avalon 2.

Функции предохранителей и реле в Toyota Avalon 2 могут варьироваться в зависимости от года выпуска, комплектации и уровня электрического оборудования вашего седана.
Расположение блока предохранителей в салоне
В интерьере Toyota Avalon второго поколения блок предохранителей размещен в нижней секции торпедо, за съемной панелью на стороне водителя, рядом с рулевой колонкой.

Расшифровка схемы блока в салоне Toyota Avalon 2

Назначение предохранителей
| 26 | 5A Электрические вентиляторы охлаждения |
| 27 | 7,5A Система кондиционирования, противоугонная система, электропривод сидений, счетчики, электро стеклоподъемники (для водителя и переднего пассажира), мультиплексная система связи |
| 28 | 10A Габаритные огни, подсветка номерного знака, задние фонари, задние боковые габаритные огни, сигнальная лампа неисправности заднего фонаря, система управления двигателем |
| 29 | 20A Подогрев сидений |
| 30 | 20A Стеклоподъемники (для переднего пассажира) |
| 31 | 10A Система противоскольжения автомобиля, обогреватель заднего стекла, система круиз-контроля, система блокировки переключения передач, антиблокировочная тормозная система, автоматическое антибликовое покрытие внутреннего зеркала заднего вида, автоматическая система управления светом, сиденья с электроприводом, сигнальная лампа неисправности заднего фонаря, индикаторы автоматической коробки передач , розетка, стеклоподъемники (для водителя), сигнальная лампа тормозной системы, люк с электроприводом |
| 32 | 10A Кондиционер |
| 33 | 15A Передние противотуманные фары |
| 34 | 7,5A Сигнальные огни поворота |
| 35 | 10A Кондиционер |
| 36 | 15A Аудиосистема, дисплей |
| 37 | 5A Приборы и счетчики, аудиосистема, прикуриватель, система кондиционирования, аварийная сигнализация, система автоматической коробки передач с электронным управлением, зеркала заднего вида с электроприводом, дисплей, подсветка перчаточного ящика, подсветка панели приборов, управление подсветкой панели приборов, розетка |
| 38 | 25A Стеклоподъемники (для водителя) |
| 39 | 15A Розетка (ACC) |
| 40 | 5A Аудиосистема, зеркала заднего вида с электроприводом, мульти информационный дисплей, система блокировки переключения передач, мультиплексная система связи |
| 41 | 10A Система подушек безопасности SRS |
| 42 | 10A Обогрев наружных зеркал заднего вида, система управления двигателем |
| 43 | 15A Розетка (IG) |
| 44 | 10A Фонари заднего хода |
| 45 | 7,5A Бортовая система диагностики |
| 46 | 15A Стоп-сигналы, высокий стоп-сигнал, антиблокировочная система тормозов, система блокировки переключения передач, система круиз-контроля, система контроля заноса автомобиля, система управления двигателем |
| 47 | 7,5A Внутреннее освещение, передние личные фары, дверные плафоны, подсветка выключателя зажигания, косметические лампы, устройство открывания гаражных ворот, сигнальная лампа открытой двери, система входа с подсветкой, задние личные фары, система автоматического управления освещением, освещение багажника, беспроводная система дистанционного управления, мультиплексная связь система |
| 48 | 5A Резерв |
| 49 | 20A Электро стеклоподъемник (для заднего левого пассажира) |
| 50 | 20A Электро стеклоподъемник (для заднего правого пассажира) |
| 51 | 25A Стеклоочистители и омыватели лобового стекла |
| 52 | 10A Антиблокировочная тормозная система, система круиз-контроля, мульти информационный дисплей, противоугонная система, система контроля заноса автомобиля, счетчики, мультиплексная система связи |
| 53 | 15A Прикуриватель |
| 54 | 25A Противоугонная система, система открывания багажника, мультиплексная система связи |
| 55 | 30A Электрическая лунная крыша |
| 61 | 40A Обогрев заднего стекла, противошумный фильтр |
| 62 | 30A Сиденья с электроприводом |
Предохранитель №53 отвечает за функционирование прикуривателя в Toyota Avalon 2. Если он перегорел, проверьте и замените его для восстановления работы розетки.
Позади основного блока предохранителей в салоне могут быть размещены дополнительные реле, такие как реле аварийной сигнализации и другие элементы электрики Toyota Avalon.

Блок предохранителей и реле под капотом
В двигательном отсеке Toyota Avalon XX20 основной блок с предохранителями и реле расположен слева от капота, защищенный пластиковой крышкой для удобства доступа и защиты от влаги.

Всегда сверяйтесь с маркировкой на внутренней стороне крышки блока предохранителей под капотом для точной идентификации элементов в вашей Toyota Avalon 2.

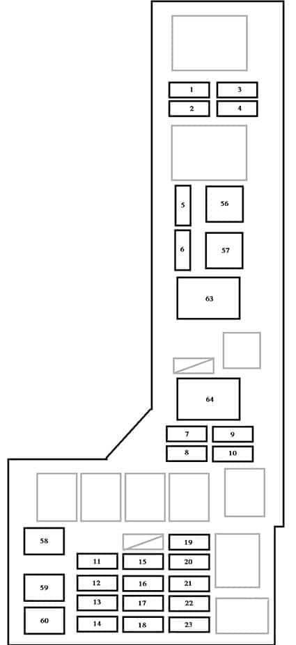
Схема блока предохранителей под капотом

Расшифровка предохранителей и реле
| 1 | 10А Без схемы (с ДХО) |
| 15А Правая фара, индикатор дальнего света (без ДХО) | |
| 2 | 10А Без схемы (с ДХО) |
| 15А Левая фара, передние противотуманные фары (без ДХО) | |
| 3 | 15А Правая фара (ближний свет) (с ДХО) |
| 4 | 15А Левая фара (ближний свет) (с ДХО) |
| 5 | 5А Система контроля заноса автомобиля АБС |
| 6 | 7,5А Система дневных ходовых огней |
| 7 | 30А Запасной предохранитель |
| 8 | 15А Запасной предохранитель |
| 9 | 25А Запасной предохранитель |
| 10 | 10А Запасной предохранитель |
| 11 | 5А Система зарядки |
| 12 | 30А Предохранители «Освещение», «ЭБУ-Б» и «РАДИО» |
| 13 | 10A Система защиты от кражи |
| 14 | 15A Сигнальные огни поворота |
| 15 | 25A Датчик воздуха/ топлива |
| 16 | 15A Система дверных замков с электроприводом |
| 17 | 10A Звуковой сигнал, противоугонная система |
| 18 | 10A Система подушек безопасности SRS, система многоточечного впрыска топлива/ система последовательного многоточечного впрыска топлива, система стартера, система зарядки, датчик воздуха/ топлива, топливный насос |
| 19 | 7,5A Система многоточечного впрыска топлива/система последовательного многоточечного впрыска топлива, расходомер воздуха, датчик кислорода, система контроля улавливания паров топлива, система управления позиционером дроссельной заслонки, система управления двигателем |
| 20 | 25A Антиблокировочная тормозная система |
| 21 | 25A Система контроля заноса автомобиля |
| 22 | 15A Система многоточечного впрыска топлива/ система последовательного многоточечного впрыска топлива, топливный насос |
| 23 | 15A Система многоточечного впрыска топлива/ система последовательного многоточечного впрыска топлива |
| 56 | 40A Система многоточечного впрыска топлива /система последовательного многоточечного впрыска топлива |
| 57 | 50A Кондиционер |
| 58 | 30A Электрические вентиляторы охлаждения |
| 59 | 30A Электрические вентиляторы охлаждения |
| 60 | 40A Стартовая система |
| 63 | 60A Антиблокировочная система тормозов, предохранитель «ABS №4» |
| 64 | 120A Предохранители «HTR», «A/C», «ABS №2», «ABS №3», «RDI», «CDS», «AM1», «ABS» и «ABS №4». |
В отдельных комплектациях Toyota Avalon 2 может быть предусмотрен дополнительный блок предохранителей и реле, отвечающий за дальний свет фар, кондиционер и другие функции.
Если у вас есть дополнения по предохранителям и реле Toyota Avalon второго поколения — оставляйте отзывы в комментариях.


