Mazda 3 BK (первое поколение) производилась с 2003 по 2008 год, включая годы 2003, 2004, 2005, 2006, 2007 и 2008, с моторами 1.4, 1.6 и 2.0 литра. За период выпуска авто прошло обновление стиля. В этой публикации приведено подробное руководство по предохранителям и реле Mazda 3 BK: схемы блоков, их расположение, с особым упором на предохранитель прикуривателя, замена предохранителей Mazda 3 и диагностика электрики.

Расположение и функции компонентов в блоках могут варьироваться в зависимости от года выпуска и комплектации вашей Mazda 3 BK.
Не та модификация?
Руководство по Mazda 3 BL (второе поколение)
Руководство по Mazda 3 BM (третье поколение)
Расположение блока в пассажирском отсеке
Блок предохранителей и реле в салоне Mazda 3 BK размещен под перчаточным ящиком.

Чтобы получить доступ, снимите защитный кожух (1), отвинтите фиксаторы (2), после чего блок опустится.
Доступ к блоку предохранителей в салоне

Фото — иллюстрация

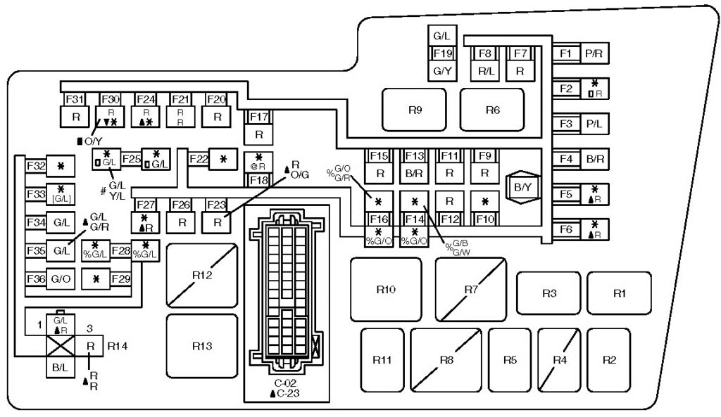
Диаграмма блока

Расшифровка предохранителей
| F37 | 15А D/LOCK 2 — Защита системы центрального замка |
| F38 | 10А STOP LAMP/ HORN — Сигналы торможения, клаксон |
| F39 | 10А HEAD HIGH L — Дальний свет левой фары |
| F40 | 10А HEAD HIGH R — Дальний свет правой фары |
| F41 | Резерв |
| F42 | Резерв |
| F43 | 15А CIGAR — Розетка прикуривателя, схема предохранителя прикуривателя Mazda 3 |
| F44 | 7,5А RADIO — Магнитола и аудиооборудование |
| F45 | 10А MIRROR — Электропривод боковых зеркал |
| F46 | 7,5А TAILR — Правый задний габарит, правый передний габарит, подсветка номерного знака |
| F47 | 10А OBD — Диагностический интерфейс и цепи электроники |
| F48 | Резерв |
| F49 | 20А TR — LOCK — Механизм трансмиссии |
| F50 | Питание контроллера, фары, поворотники, аварийка |
| F51 | Фары, поворотники, аварийная сигнализация, обогрев стекла |
| F52 | 20А SUN ROOF — Люк на крыше |
| F53 | 20А WASHER — Стеклоочиститель и омыватель лобового стекла |
| F54 | Резерв |
| F55 | 30А P/WIND R — Электростеклоподъемник справа |
| F56 | 30А P/WIND L — Электростеклоподъемник слева |
| F57 | 7,5A ALARM — Система сигнализации |
| F58 | 7,5A M/DEF — Подогрев зеркал |
| F59 | Резерв |
| F60 | 15А HEAD LOW R — Ближний свет правой фары, коррекция фар |
| F61 | 15А HEAD LOW L — Ближний свет левой фары |
| F62 | Резерв |
| F63 | Резерв |
| F64 | Резерв |
| F65 | 10А SAS — Airbag-система |
| F66 | 10А METER — Панель приборов, иммобилайзер |
| F67 | 20А IGNITION — ABS, DSC, электроусилитель руля |
| F68 | 20А WIPER — Омыватель и щетки лобового стекла |
| F69 | 20А ENGINE — Цепи моторного отсека |
| F70 | 10А IGSIG — Автоматический дворник, стеклоподъемники |
| F71 | Резерв |
| F72 | Резерв |
| F73 | Резерв |
| F74 | 20А SEAT WARM — Обогрев кресел |
| F75 | 25А D/LOCK 1 — Центральный замок |
| F76 | 10А АС — Климат-контроль, печка |
| F77 | 30А P/WIND L — Стеклоподъемник слева |
| F78 | 30А P/WIND R — Стеклоподъемник справа |
| F79 | 10А BACK — Маршрутные огни |
| F80 | 7,5А SUN ROOF — Люк |
| F81 | 7,5А TAILL — Левый задний габарит, левый передний |
| F82 | 7,5А ILLUMI — Подсветка консоли |
| F83 | Резерв |
| F84 | Резерв |
| F85 | Резерв |
| F86 | Резерв |
Предохранитель прикуривателя — это F43 на 15А. Дополнительные элементы могут быть в моторном блоке, схема реле и предохранителей Mazda 3 BK.
Блок в моторном отсеке
Монтируется слева под моторным щитком с крышкой.

Диаграмма

Функции предохранителей
| F1 | 40А FAN — Радиаторный вентилятор |
| F2 | 80А P/ST — Электроусилитель руля (EHPAS) |
| F3 | 40А P/ST — Электрические цепи |
| F4 | 40А HEAD — Передние фары |
| F6 | 60А GLOW — Подогрев свечей (дизель) |
| F7 | 30А ABS1 — ABS и система стабилизации DSC |
| F8 | 20А ABS2 — ABS и DSC |
| F9 | 30А ENGINE — Цепи двигателя |
| F10 | Резерв |
| F11 | 30А IGKEY1 — Ключ зажигания |
| F12 | 20А STARTER — Стартер |
| F13 | 30А IGKEY2 — Зажигание |
| F14 | 30А GLOW1 — Свечи накаливания |
| F15 | 40А HEATER — Вентилятор отопителя |
| F16 | 30А GLOW 2 — Свечи накаливания |
| F17 | 40А DEFOG — Обогрев заднего стекла |
| F18 | 30А AUDIO — Аудиосистема BOSE |
| F19 | 10А ABSIG — Сигналы ABS и DSC |
| F20 | 15А FOG — Противотуманки спереди |
| F21 | 15А HORN — Гудок |
| F22 | 10А DRL — Дневные ходовые огни |
| F23 | 20А H/CLEAN — Омыватель фар, подогрев топлива |
| F24 | 15А F/PUMP — Бензонасос |
| F25 | 10А P/ST IG — ГУР |
| F26 | 10А A/C MAG — Кондиционер |
| F27 | 15А ALT/TCM 1GA — Генератор, блок антискольжения |
| F28 | 10А GLOWSIG — Дополнительный предохранитель прикуривателя |
| F29 | P.OUTLET — Розетки для аксессуаров |
| F30 | 10А ENG+B — РСМ, дозировка присадки |
| F31 | 15А ROOM — Домашнее освещение |
| F32 | 10А ENG BAR 4 — Лямбда-зонды |
| F33 | 10А ENG BAR 3 — Лямбда-зонды |
| F34 | 10А EGIINJ — Инжекторы |
| F35 | 10А ENG BAR 1 — Электрика мотора |
| F36 | ENG BAR 2 — РСМ, насос топлива |
Расшифровка реле
R1 | Реле противотуманок |
R2 | Реле сигнала |
R3 | Реле дефростера стекла |
R4 | ETV-контур |
R5 | Реле топлива (дизель) |
R6 | Реле бензонасоса |
R7 | Не задействовано |
R8 | Не задействовано |
R9 | Реле омывателя фар |
R10 | Реле кулера |
R11 | Реле А/С |
R12 | Резерв |
R13 | Реле стартера |
R14 | Реле ЭБУ двигателя |
На нашем YouTube-канале есть видеоинструкция по предохранителям Mazda 3 BK. Рекомендуем посмотреть и подписаться для обновлений.
Если есть полезные дополнения к схеме предохранителей или реле — делитесь в комментариях. Заранее спасибо!


