Isuzu Elf представляет собой линейку грузовых коммерческих транспортных средств от компании Isuzu, выпускаемых с 1954 года и до сегодняшнего дня в шести поколениях с разнообразными вариантами исполнения, типами кузовов и двигателями. За рубежом, особенно вне Японии, эта серия известна под названием N-серия (включая модели вроде NQR 75, NPR 71 и аналогичные). В этой публикации мы разберем расположение и функции предохранителей, реле для Isuzu Elf 75, включая детальные схемы блоков предохранителей, их позиции с иллюстрациями и примерами для пятого поколения (1989–2006 годы) и шестого поколения (2007–2020 годы). Особое внимание уделим предохранителю прикуривателя, а также добавим ключевые слова для поиска: fuse box Isuzu Elf, схема предохранителей Isuzu N-series, реле Isuzu Elf 75.

Универсального описания для всех версий не существует. Мы опишем три наиболее распространенных конфигурации. Всегда проверяйте назначение элементов по схеме на крышке вашего блока предохранителей Isuzu Elf.
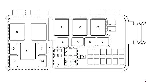
Вариант 1
Эти схемы в основном подходят для моделей пятого поколения с двигателями 4HF1 и 4HG1, включая грузовики Isuzu Elf 75 для коммерческого использования.
Блок предохранителей
Этот основной блок размещен в приборной панели и защищен крышкой, на которой обычно указана актуальная схема с расшифровкой предохранителей и реле.

Фотография

Схема

Описание
| 1 | 25А / 15А Электродвигатель вентилятора отопителя, резистор вентилятора отопителя, выключатель по температуре, выключатель по давлению, реле отключения кондиционера, реле кондиционера, термостат, э/п клапан системы повышения частоты вращения XX (FICD) |
| 2 | 10А Выключатель кондиционера, реле кондиционера, выключатель по давлению, электромагнитная муфта компрессора кондиционера, э/п клапан системы повышения частоты вращения XX(FICD), термостат |
| 3 | 10А Реле стартера, выключатель запрещения запуска |
| 4 | 15А Прикуриватель, радиоприемник |
| 5 | 10А Фара (правая), реле переключателя света фар |
| 6 | 10А Фара (левая), реле переключателя света фар, реле-прерыватель указателей поворота, указатели поворота |
| 7 | 15А Радиоприемник и часы, освещение салона, выключатель освещения салона, концевые выключатели дверей, зуммер системы предупреждения о движении задним ходом, выключатель блокировки дверей, реле центрального замка, электропривод замков дверей, контроллер центрального замка, спидометр |
| 8 | 15А Выключатель аварийной сигнализации, звуковой сигнал, реле звукового сигнала, выключатель звукового сигнала, указатели поворота |
| 9 | 15А Реле габаритов, подсветка, выключатель противотуманных фар, противотуманные фары, переключатель управления освещением, выключатель задних противотуманных фонарей, реле задних противотуманных фонарей |
| 10 | 10А Выключатель стоп-сигналов, стоп-сигналы, контроллер блокировки селектора |
| 11 | 15А Переключатель управления стеклоочистителями и стеклоомывателями, электродвигатель стеклоочистителей, электродвигатель стеклоомывателей, реле системы изменения интервала работы стеклоочистителей |
| 12 | 10А Реле управления горным тормозом, электронный блок управления АКПП, индикатор «OD OFF», индикатор «UNLADEN», реле электродвигателя вентилятора конденсатора, зуммер системы предупреждения о движении задним ходом, выключатель фонарей заднего хода, фонари заднего хода, выключатель запрещения запуска, реле стартера, контроллер системы облегчения запуска двигателя (QOSIII), , контроллер системы облегчения запуска двигателя (QOSII), реле свечей накаливания №1, реле свечей накаливания №2, индикатор свечей накаливания, указатель температуры охлаждающей жидкости, датчик температуры, датчик скорости автомобиля, комбинация приборов, реле электропривода стеклоподъемников, реле-прерыватель указателей поворота, переключатель системы управления полным приводом (4WD), реле системы 4WD, электро пневмо клапан системы управления полным приводом |
| 13 | 10А / 15А Подогреватель топлива |
| 14 | 15А Задний отопитель, выключатель заднего отопителя |
| 15 | 10А Выключатель горного тормоза, реле управления горным тормозом, электромагнитный клапан горного тормоза, электромагнитная муфта горного тормоза, педаль акселератора |
| 16 | 10А Выключатель противотуманных фар, противотуманные фары, ЭБУ |
| 17 | 10А Указатели поворота, выключатель указателей поворота |
| 18 | 15А Генератор, реле системы зарядки, контроллер системы облегчения запуска двигателя (QOSIII) |
| 19 | 10А Электропривод останова двигателя, электромагнитный клапан отсечки топлива |
| 20 | 10А Переключатель корректора фар, электропривод корректора фар |
| 23 | 15А Повторители указателей поворота, реле повторителей указателей поворота |
Предохранитель №4 на 15А отвечает за прикуриватель в Isuzu Elf 75.
Блок реле и предохранителей
Этот блок размещается слева в задней зоне кабины или за левым брызговиком. Здесь обычно находятся мощные предохранители, плавкие предохранители и отдельные реле для ключевых систем.
Фото пример

Схема

Расшифровку реле смотрите в следующей таблице для блока реле Isuzu Elf.
Блок реле в салоне
Схема

Некоторые реле могут быть установлены отдельно, например, В-261 (над основным блоком предохранителей Isuzu NQR).
Расшифровка
| В-9 | Реле системы изменения интервала работы стеклоочистителей (INTERMITTENT) |
| В-19 | Реле системы зарядки |
| В-19 | (CHARGE) |
| В-20 | Реле фар |
| В-20 | (HEAD) |
| В-21 | Реле системы кондиционирования, отопления и вентиляции (HEATER & AIR CON.) |
| В-22 | Реле габаритов (TAIL) |
| В-23 | Реле комбинированного переключателя |
| В-23 | (DIMMER) |
| В-24 | Реле звукового сигнала |
| В-24 | (HORN) |
| В-34 | Реле задних противотуманных фонарей |
| В-34 | (REAR FOG) |
| В-35 | Реле ламп освещения при повороте |
| В-35 | (CORNERING LIGHT) |
| В-35 | Реле задних противотуманных фонарей |
| В-35 | (RR FOG) |
| В-36 | Реле электропривода стеклоподъемников |
| В-36 | (POWER WINDOW) |
| В-37 | Реле выключателя по давлению |
| В-37 | (А/С THERMO) |
| В-38 | Реле горного тормоза |
| В-38 | (EXH. BRAKE) |
| J-12 | Реле стартера |
| J-12 | (STARTER) |
| J-13 | Реле свечей накаливания |
| J-14 | Реле свечей накаливания |
| J-16 | Реле автомата управления прогревом конденсатора (CDS) |
| J-18 | Реле управления горным тормозом |
| J-18 | (EXH. BRAKE CONTROL) |
| J-19 | Реле системы 4WD |
| J-19 | Реле отключения кондиционера |
| J-19 | (А/С CUT) . |
| J-20 | Реле повторителей указателей поворота (MARKER LIGHT) |
Вариант 2
Такая конфигурация характерна для шестого поколения Isuzu Elf с двигателями 4HG1-1, 4JJ1, 4HK1, включая модернизированные грузовики N-series для европейского рынка.
Блок в салоне
Основной блок предохранителей и реле в этой версии расположен в салоне, в приборной панели на стороне пассажира, для удобного доступа при диагностике fuse box Isuzu Elf 75.

Фотография

Схема

Обозначение
| 1 | 20A Механизм отбора мощности (АКБ) |
| 2 | 20A Стеклоподъемник задней правой двери |
| 3 | 15A Освещение салона, аудиосистема |
| 4 | 15A Замки дверей |
| 5 | 10A Противотуманные фары |
| 6 | 20A Электрические стеклоподъемники |
| 7 | 10A Антиблокировочная система тормозов (ABS) |
| 8 | 15A Стеклоочиститель |
| 9 | 10A Ближний свет (левая фара) |
| 10 | 10A Система управления двигателем (АКБ) |
| 11 | 10A Ближний свет (правая фара) |
| 12 | 10A Стоп-сигналы |
| 13 | 15A Зажигание (IGN2) |
| 14 | 10A Дальний свет (левая фара) |
| 15 | 10A Дальний свет (правая фара) |
| 16 | 10A Механизм отбора мощности (KEY ST) |
| 17 | 10A Стартер |
| 18 | 15A Зажигание (IGN1) |
| 19 | 10A Надувные подушки безопасности |
| 20 | 10A Блок управления двигателем (ЕСМ) |
| 21 | 10A Приборы |
| 22 | 10A Фонари (АКБ) |
| 23 | 15A Аудиосистема (АСС) |
| 24 | 15A Привод наружных зеркал |
| 25 | 15A Звуковой сигнал |
| 26 | 15A Указатели поворота, аварийная сигнализация |
| 27 | 10A Габаритные фонари |
| 28 | 10A Подсветка |
| 29 | 10A Боковые фонари подсветки поворота, задний противотуманный фонарь |
| 30 | 20A Электродвигатель вентилятора отопителя, 10А кондиционер |
| 31 | 20А Прикуриватель |
| 32 | Запасной |
| 33 | Запасной |
| Реле | |
| 1 | Стоп-сигналы |
| 2 | Электродвигатель вентилятора отопителя |
| 3 | Замок зажигания (KEY ON) |
| 4 | 4JJ1, 4HK1: Замки дверей (запирание) |
| 4HG1: Резервное место | |
| 5 | 4JJ1, 4HK1: Задний противотуманный фонарь |
| 4HG1: Резервное место | |
| 6 | Основной режим стеклоочистителя |
| 7 | Звуковой сигнал |
| 8 | Режимы стеклоочистителя (HIGH/LOW) |
| 9 | Противотуманные фары |
| 10 | Механизм отбора мощности (MAIN) |
| 11 | 4JJ1, 4HK1: Замки дверей (открывание) |
| 4HG1: Резервное место | |
| 12 | Стеклоподъемники |
| 13 | Фары (ближний свет) |
| 14 | 4JJ1, 4HK11), 4HG1: Полный привод |
| 4HK12): Управление моторным тормозом (модели с ABS) | |
| 15 | Фары (дальний свет) |
| 16 | Габаритные фонари |
| 17 | 4JJ1, 4HK11): Электромагнитный клапан механизма отбора мощности (модели с механической коробкой передач) |
| 4HK12): Резервное место | |
| 4HG1: Отключение моторного тормоза | |
| 18 | 4JJ1, 4HK11): Отключение механизма отбора мощности |
| 4HK12): Резервное место | |
| 4HG1: Моторный тормоз | |
| 19 | 4JJ1, 4HK11): Зарядка (при работающем двигателе) |
| 4JJ1, 4HK11), 4HG1: Раздаточная коробка (зажигание 1) | |
| 4HK12): Электромагнитный клапан механизма отбора мощности (модели с механической коробкой передач) | |
| 20 | 4JJ1, 4HK11): Стеклоподъемники (задние) |
| 4HK12): Отключение механизма отбора мощности | |
| 4HG1: Зарядка (при работающем двигателе) | |
| 21 | 4HG1: Электромагнитный клапан механизма отбора мощности (модели с механической коробкой передач) |
| 22 | 4HG1: Отключение механизма отбора мощности |
- 1) Автомобили с двигателем 4JJ1/4HK1 (модели с гидравлической тормозной системой)
- 2) Автомобили с двигателем 4HK1 (модели с пневматической тормозной системой)
Прикуриватель защищен предохранителем №31 на 20А в этой схеме для Isuzu Elf 75.
Блок за кабиной
Дополнительный блок предохранителей и реле установлен снаружи кабины. Чтобы получить доступ, снимите защитную крышку для проверки компонентов.

Фото пример

Схема

Назначение
| 1 | 10А Габаритные фонари |
| 4HG1: Не используется | |
| 1 | 15А 4JB1-TC: Подогреватель топлива |
| 2 | 10А Блок управления двигателем (ЕСМ) |
| 4JB1-TC, 4HG1: Не используется | |
| 3 | 10А Аккумуляторная батарея |
| 3 | 15А 4JB1-TC: Аккумуляторная батарея |
| 4 | 10А Кондиционер |
| 4JB1-TC: Не используется | |
| 5 | 20А 4HK13): Кондиционер воздуха, ABS |
| 4HK11,2), 4JJ1: Не используется | |
| 4JB1-TC: Габаритные фонари | |
| 4HG1: Подогреватель топлива | |
| 6 | 15А 4JB1-TC: Кондиционер |
| 4HK1, 4JJ1: Не используется | |
| 4HG1: Остановка двигателя | |
| Реле | |
| 1 | Стартер |
| 2 | 4HK1, 4JJ1:Блок управления двигателем (ЕСМ) |
| 4JB1-TC, 4HG1: Не используется | |
| 3 | Свечи накаливания |
| 4 | Компрессор кондиционера |
| 5 | Вентилятор конденсатора |
| 6 | 4HK1, 4JJ1:Отключение стартера |
| 4JB1-TC: Моторный тормоз | |
| 4HG1: Остановка двигателя | |
| 7 | 4HK11), 4JJ1:Габаритные фонари (модели с задними противотуманными фонарями) |
| 4HK12,3): Моторный тормоз | |
| 4JB1-TC, 4HG1: Подогреватель топлива | |
| 8 | Селектор переключения передач |
| 9 | Полный привод 4WD (модель NPS) |
| 10 | Подогреватель топлива (модели с подогревателем топлива) |
| 11 | Управление раздаточной коробкой (модель NPS) |
| 12 | Запуск двигателя (модели с подогревателем топлива) |
| 13 | 4HK12,3): Габаритные фонари (модели с задними противотуманными фонарями) |
- 1) Модели с двигателем 4HK1 (нормы выбросов «Евро 4») и гидравлической тормозной системой, модели с двигателем 4JJ1
- 2) Модели с двигателем 4HK1 (нормы выбросов «Евро 2» или «Евро 3») с гидравлической тормозной системой
- 3) Модели с двигателем 4HK1 и пневматической тормозной системой
- 4) Модели с двигателем 4JB1-TC (тип 1)
- 5) Модели с двигателем 4HG1 (тип 1)
Вариант 3
Эта схема предназначена для моделей с двигателями 4JB1. Позиции блоков идентичны варианту 2, что упрощает поиск fuse box в Isuzu Elf NPR.
Блок в салоне
Фото

Схема

Описание
| 1 | 10A Лампы (АКБ) |
| 2 | 10A Освещение салона, аудиосистема |
| 3 | 10A Моторный тормоз |
| 4 | 15A Замки дверей |
| 5 | 15A Противотуманные фары |
| 6 | 25A Стеклоподъемники |
| 7 | 10A Дальний свет (левая фара) |
| 8 | 10A Дальний свет (правая фара) |
| 9 | 10A Стоп-сигналы |
| 10 | 10A Ближний свет (левая фара) |
| 11 | 10A Ближний свет (правая фара) |
| 12 | 10A Габаритные фонари |
| 13 | 10A Лампы (АКБ) |
| 14 | 10A Зажигание (IGN2) |
| 15 | 10A Стартер |
| 16 | 10A Остановка двигателя |
| 17 | 10A Зажигание (IGN1) |
| 18 | 10A Фонари заднего хода |
| 19 | 10A Приборы |
| 20 | 15A Аудиосистема (АСС) |
| 21 | 10A Кондиционер воздуха |
| 22 | 15A Звуковой сигнал |
| 23 | 15A Указатели поворота, аварийная сигнализация |
| 24 | 25A Стеклоочиститель |
| 25 | Запасной |
| 26 | Запасной |
| 27 | Запасной |
| Реле | |
| 1 | Габаритные фонари |
| 2 | Фары (дальний свет) |
| 3 | Фары (ближний свет) |
| 4 | Стеклоподъемники |
| 5 | Стоп-сигналы |
| 6 | Зарядка (при работающем двигателе) |
| 7 | Замок зажигания (KEY ON) |
| 8 | Моторный тормоз |
| 9 | Основной режим стеклоочистителя |
| 10 | Режимы работы стеклоочистителя (HIGH/LOW) |
| 11 | Противотуманные фары |
| 12 | Звуковой сигнал |
| 13 | Резервное место |
| 14 | Электродвигатель вентилятора |
Блок за кабиной
Фото пример

Схема

Обозначение
| 1 | 10А 4HG1 (тип 2), 4HG1-T: Остановка двигателя |
| 1 | 15А 4JB1-TC (тип 2), 4JB1: Источник питания |
| 2 | 10А 4HG1 (тип 2), 4HG1-T: Запасная аккумуляторная батарея |
| 2 | 15А 4JB1-TC (тип 2), 4JB1: Подогреватель топлива |
| 3 | 10А 4HG1 (тип 2), 4HG1-T: Подогреватель топлива |
| 3 | 20А 4JB1-TC (тип 2), 4JB1: Кондиционер |
| 4 | 10А 4HG1 (тип 2), 4HG1-T: Кондиционер воздуха |
| 4 | 20А 4JB1-TC (тип 2), 4JB1: Вентилятор конденсатора |
| Реле | |
| 1 | Предпусковый подогрев |
| 2 | Стартер |
| 3 | 4HG1 (тип 2), 4HG1-T: Остановка двигателя |
| 4JB1-TC (тип 2), 4JB1: Не используется | |
| 4 | Подогрев топлива |
| 5 | Вентилятор конденсатора |
| 6 | Моторный тормоз |
| 7 | 4JB1-TC (тип 2), 4JB1:CSD |
| 4HG1 (тип 2), 4HG1-T: Не используется | |
Это полное руководство по предохранителям и реле Isuzu Elf 75. Если у вас есть дополнения или личные схемы для моделей NQR, NPR, поделитесь в комментариях для других владельцев грузовиков Isuzu.


