Renault Scenic 2 второго поколения производилась в период с 2003 по 2010 год, включая модели 2003, 2004, 2005, 2006, 2007, 2008, 2009 и 2010 годов выпуска. Семиместная версия известна под названием Grand Scenic. За эти годы автомобиль подвергся одной незначительной обновке. В данной статье мы подробно разберем расположение блоков реле и предохранителей в Renault Scenic 2 поколения, предоставим актуальные фото блоков, электрические схемы, а также расшифровку назначения всех компонентов. Полезные ключевые слова: предохранители Renault Scenic 2, схема реле Scenic, распиновка блоков предохранителей, где находятся реле в Рено Сценик 2.

Блоки в салоне
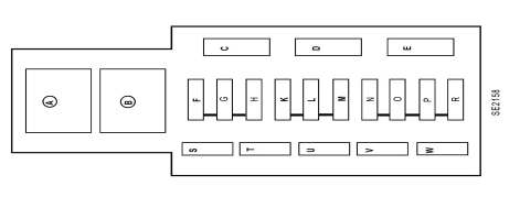
Основной блок предохранителей
Этот блок расположен в приборной панели, с левой стороны от водителя.

На крышке защитного отсека размещена схема с указанием позиций предохранителей и реле.

Электрическая схема

Расшифровка элементов
- А — 40А Реле для электростеклоподъемников или ксеноновых фар
- В — 40А Реле стоп-сигналов
| C | 40А Вентилятор отопителя салона |
| D | 40А Импульсные задние стеклоподъемники или реле передних (для машин с левым рулем) |
| E | 20А Электропривод люка в крыше |
| F | 10А ЭБУ ABS и ESP: датчик ускорения |
| G | 15А Аудиосистема, реле омывателей фар, прикуриватель передних сидений, подогрев сидений, насос омывателя, реле дизельного подогрева, климат-контроль, электрохромное зеркало, сигнализация, центральный блок |
| H | 15А Стоп-сигналы |
| K | 5А Реле питания ксенона, узел ксеноновых ламп, подсветка бардачка |
| L | 25А Стеклоподъемник двери водителя |
| M | 25А Стеклоподъемник пассажирской двери или реле (для правого руля) |
| N | 20А Отключение потребителей: аудио, зеркала, сигнализация, приборы, консоль |
| O | 15А Гудок, диагностика, реле омывателей фар |
| P | 15А Очиститель заднего стекла |
| R | 20А Центральный ЭБУ, климат, реле стопов (B) |
| T | 15А Предохранитель прикуривателя в Renault Scenic 2 |
| S | 3А Вентилятор салона, датчик температуры, электрохромное зеркало, датчики дождя и света |
| U | 20А Центральный замок или блокировка ручек дверей |
| V | Не используется |
| W | 7,5А Подогрев боковых зеркал |
Предохранитель прикуривателя маркирован как Т — проверьте по схеме.
Блок под пассажирским сидением
Этот блок размещен под передним пассажирским сиденьем в салоне.

Фото расположения

Схема блока

Расшифровка предохранителей
| 1 | 25А Автоматический стояночный тормоз |
| 2 | 20А Обогрев передних сидений |
| 3 | 10А Резервный |
| 4 | 10А Розетка на консоли, блокировка консоли, подсветка бардачка |
| 5 | 10А Розетка второго ряда сидений |
| 6 | 10А Розетка первого ряда сидений |
| А | 50А Реле потребителей, второе реле для 2, 4, 5, 6 |
Дополнительные реле
Пара реле дополнительного обогрева расположена справа от центрального блока, а реле потребителей — на левой тяге поперечины приборной панели.
Блоки в моторном отсеке
Обзор общего расположения и способов доступа к блокам доступен в специальном видео.
Предохранители в коммутационном блоке
Блок 1

Схема блока 1

Расшифровка
| 3 | 25А Реле стартера |
| 4 | 10А Компрессор кондиционера |
| 5A | 15А Электрозамок руля |
| 5C | 10А Задний ход |
| 5D | 5А ЭБУ впрыска и рулевой замок (после зажигания) |
| 5E | 5А ЭБУ подушек и ГУР (после зажигания) |
| 5F | 7,5А Питание после зажигания: селектор АКПП, круиз-контроль, салонный блок, доп. реле, диагностика, зеркало, датчики (зависит от комплектации, ЭБУ, аудио) |
| 5H | 5А АКПП |
| 5G | 10А Резерв (или питание LPG, если установлено) |
| 6 | 30А Обогрев заднего стекла |
| 7А | 7,5А Правые габариты, парктроник, ESP, селектор, ручник |
| B7 | 7,5А Левые габариты, прикуриватель, замки, корректор фар, климат, задние стеклоподъемники, навигация, подогрев сидений |
| 8А | 10А Правая фара (дальний) |
| B8 | 10А Левая фара (дальний) |
| 8C | 10А Правая фара (ближний), корректор, ЭБУ ксенона |
| 8D | 10А Левая фара (ближний), корректор |
| 9 | 25А Очиститель лобового стекла |
| 10 | 20А Противотуманки |
| 11 | 40А Вентилятор охлаждения (низкая скорость) |
| 13 | 25А ЭБУ ABS/ESP |
| 15 | 20А АКПП или LPG (если есть) |
| 16 | 10А Резерв |
Блок 2

Схема блока 2

Функции элементов
| 1 | 70А Реле доп. обогрева 2 |
| 2 | 60А Салонный блок предохранителей |
| 3 | 40А Реле доп. обогрева 1 |
| 4 | 70А Электроусилитель руля |
| 5 | 50А ABS блок |
| 6 | 70А Салонный блок |
| 7 | 20А Подогрев топливного фильтра (дизель) |
| 8 | 70А Предпусковой подогрев |
| 9 | Резерв |
Предохранители на аккумуляторе
Плавкие предохранители установлены на положительном выводе АКБ.

- 30А — ЭБУ в салоне
- 350 А (бензин) или 400 А (дизель) — Моторный коммутационный блок
- 30А — Моторный коммутационный блок
На нашем канале есть видео-обзор по этой теме. Рекомендуем посмотреть и подписаться.
Если у вас есть дополнения или вопросы — оставляйте отзывы в комментариях.


